【月見ヶ丘5丁目 高台の住宅地 延床面積115㎡超 リノベーション戸建て】 内覧可能♪
【月見ヶ丘5丁目 高台の住宅地 延床面積115㎡超】
◆リフォーム済み 内覧可能♪
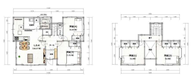
◆4LDK LDK約18帖 駐車場2台
◆南側の眺望の良い立地
◆水回りすべて交換
◆シロアリ防蟻処理工事
◆瑕疵保証付き戸建て
◆住宅ローン減税対象
◆24時間アフターサポート付き
◆リフォーム済み 内覧可能♪
◆4LDK LDK約18帖 駐車場2台
◆南側の眺望の良い立地
◆水回りすべて交換
◆シロアリ防蟻処理工事
◆瑕疵保証付き戸建て
◆住宅ローン減税対象
◆24時間アフターサポート付き
この物件についてお問い合わせする
価格
2,598万円
間取り
4LDK
- 土地面積
- 203.81㎡(61.65坪)
- 建物延べ面積
- 115.48㎡(34.93坪)
- 建ぺい率・容積率
- 建ぺい率40%、容積率60%
所在地
宮崎市月見ヶ丘5丁目 【中古戸建て】
建築年月
昭和59年3月築
構造
2階建て
バルコニーの向き
南向き
駐車場
駐車場2台
現況
空室
バス停・駅
土地権利
所有権
地目
宅地
小学校区
宮崎南小学校
中学校区
赤江中学校
- 都市計画
- 市街化区域
- 用途地域
- 第一種低層住居専用地域
- 取引形態
- 仲介
設備
プロパンガス/ウォシュレット/シャワー付洗面化粧台/システムキッチン/対面式キッチン/食洗機/浄水器/追炊機能/給湯/シャワー/室内洗濯機置場/モニター付きインターホン/駐車場・庭付き/WIC/浴室乾燥機/浴室1坪以上
接道の向き・道路幅・接道間口
西側6m
備考
月見ヶ丘5アドレスの人気エリアのリノベーション戸建て
4LDK LDK約18帖 延床面積115㎡超
瑕疵保証付きの戸建てです。
【リノベーション箇所】
・外壁塗装
・キッチン、浴室、洗面、トイレ交換
・フローリング、クロス張替
・シロアリ防蟻工事
など、、、
4LDK LDK約18帖 延床面積115㎡超
瑕疵保証付きの戸建てです。
【リノベーション箇所】
・外壁塗装
・キッチン、浴室、洗面、トイレ交換
・フローリング、クロス張替
・シロアリ防蟻工事
など、、、









