【小松台西3丁目 南側道路 高台の住宅地】 内覧可能♪
【小松台西3丁目 南側道路 高台の住宅地】
◆内覧可能です。
◆高台の低層エリア
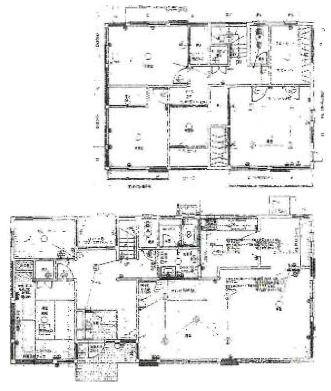
◆延床面積166㎡! 南庭付き 駐車場2台
◆カーポート付き
◆内覧可能です。
◆高台の低層エリア
◆延床面積166㎡! 南庭付き 駐車場2台
◆カーポート付き
この物件についてお問い合わせする
価格
2,980万円
間取り
4SLDK
- 土地面積
- 292.30㎡(88.42坪)
- 建物延べ面積
- 166.87㎡(50.47坪)
- 建ぺい率・容積率
- 建ぺい率40%、容積率60%
所在地
宮崎市小松台西3丁目 【中古戸建て】
建築年月
昭和61年8月
構造
木造2階建て
バルコニーの向き
駐車場
駐車場2台
現況
入居中
バス停・駅
宮交バス「南ハイランド」徒歩4分
土地権利
所有権
地目
宅地
小学校区
小松台小学校
中学校区
生目中学校
- 都市計画
- 市街化区域
- 用途地域
- 第一種低層住居専用地域
- 取引形態
- 仲介
設備
室内洗濯機置場
接道の向き・道路幅・接道間口
南側6.0m
備考
内覧可能









