(購入申し込み有)【大工3丁目 延床面積約135㎡ リフォーム戸建て】 内覧可能♪
【大工3丁目 延床面積約135㎡】
◆リフォーム済み 内覧可能♪
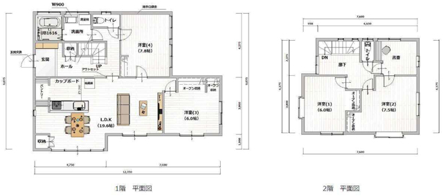
◆4SLDK LDK約20帖 駐車場並列2台、縦列2台可
◆街中の好立地(小戸小、宮崎西中エリア)
◆水回りすべて交換
◆シロアリ防蟻処理工事
◆瑕疵保証付き戸建て
◆住宅ローン減税対象
◆24時間アフターサポート付き
◆リフォーム済み 内覧可能♪
◆4SLDK LDK約20帖 駐車場並列2台、縦列2台可
◆街中の好立地(小戸小、宮崎西中エリア)
◆水回りすべて交換
◆シロアリ防蟻処理工事
◆瑕疵保証付き戸建て
◆住宅ローン減税対象
◆24時間アフターサポート付き
この物件についてお問い合わせする
価格
2,200万円
間取り
4SLDK
- 土地面積
- 322.73㎡(97.62坪)
- 建物延べ面積
- 134.93㎡(40.81坪)
- 建ぺい率・容積率
- 建ぺい率60%、容積率200%
所在地
宮崎市大工3丁目 【中古戸建て】
建築年月
昭和60年7月築
構造
2階建て
バルコニーの向き
南向き
駐車場
駐車場4台可
現況
空室
バス停・駅
宮交バス「水道局前」徒歩4分
土地権利
所有権
地目
宅地
小学校区
小戸小学校
中学校区
宮崎西中学校
- 都市計画
- 市街化区域
- 用途地域
- 第二種中高層住居専用地域
- 取引形態
- 仲介
設備
プロパンガス/ウォシュレット/シャワー付洗面化粧台/システムキッチン/対面式キッチン/食洗機/浄水器/追炊機能/給湯/シャワー/室内洗濯機置場/モニター付きインターホン/駐車場・庭付き/パントリー/浴室乾燥機/浴室1坪以上/トイレ2か所
接道の向き・道路幅・接道間口
北側6m
備考
大工3丁目アドレスの人気エリアのリフォーム戸建て
4SLDK LDK約20帖 延床面積約135㎡
瑕疵保証付きの戸建てです。
【リフォーム箇所】
・外壁塗装
・キッチン、浴室、洗面、トイレ交換
・フローリング、クロス張替
・シロアリ防蟻工事
など、、、
4SLDK LDK約20帖 延床面積約135㎡
瑕疵保証付きの戸建てです。
【リフォーム箇所】
・外壁塗装
・キッチン、浴室、洗面、トイレ交換
・フローリング、クロス張替
・シロアリ防蟻工事
など、、、









































