【高台の落ち着いた住環境に、ゆとりと快適性を備えた一邸。】 大塚台西2丁目 販売2棟(1号棟) 新築一戸建て
【高台の落ち着いた住環境に、ゆとりと快適性を備えた一邸。】
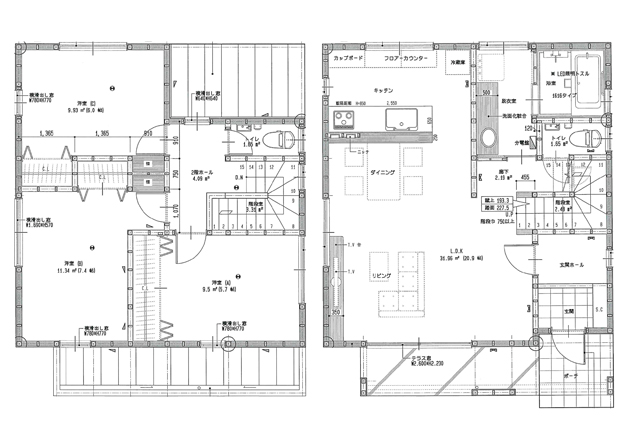
・LDK約21帖の広々空間
・南側6m道路で日当たり良好
・駐車場並列3台可能
・主寝室7.4帖確保
・食洗機+カップボード付き
・1616浴室+浴室乾燥暖房機
・リビングエアコン・照明付き
・省令準耐火構造・オール電化
・LDK約21帖の広々空間
・南側6m道路で日当たり良好
・駐車場並列3台可能
・主寝室7.4帖確保
・食洗機+カップボード付き
・1616浴室+浴室乾燥暖房機
・リビングエアコン・照明付き
・省令準耐火構造・オール電化
この物件についてお問い合わせする
価格
3,880万円
間取り
3LDK
- 土地面積
- 157.00㎡(47.49坪)
- 建物延べ面積
- 94.74㎡(28.65)
- 建ぺい率・容積率
- 建ぺい率40%、容積率60%
所在地
宮崎市大塚台西2丁目
建築年月
令和8年6月
構造
木造2階建て
バルコニーの向き
南向き
駐車場
駐車場3台可
現況
建築中
バス停・駅
土地権利
所有権
地目
宅地
小学校区
宮崎西小学校
中学校区
生目南中学校
- 都市計画
- 市街化区域
- 用途地域
- 第一種低層住居専用地域
- 取引形態
- 専任
設備
バルコニー/ウォシュレット/シャワー付洗面化粧台/システムキッチン/対面式キッチン/食洗機/浄水器/IHコンロ/オール電化/追炊機能/給湯/シャワー/室内洗濯機置場/モニター付きインターホン/駐車場・庭付き/浴室乾燥機/浴室1坪以上/トイレ2か所/温水洗浄便座
接道の向き・道路幅・接道間口
南側道路
備考
大塚台西2丁目の高台住宅地に誕生した、新築2階建て住宅のご紹介です。
南側約6m道路に接道し、日当たりと開放感に恵まれた立地。
間取りは3LDK、LDKは約21帖のゆとりある空間設計。
主寝室も約7.4帖を確保し、ご家族の暮らしやすさに配慮しました。
食洗機・カップボード・浴室乾燥暖房機・1616サイズ浴室・リビングエアコン・照明付きなど、初期費用を抑えながら新生活をスタートできる設備が充実。
駐車場は並列3台可能、省令準耐火構造・オール電化仕様の住まいです。
南側約6m道路に接道し、日当たりと開放感に恵まれた立地。
間取りは3LDK、LDKは約21帖のゆとりある空間設計。
主寝室も約7.4帖を確保し、ご家族の暮らしやすさに配慮しました。
食洗機・カップボード・浴室乾燥暖房機・1616サイズ浴室・リビングエアコン・照明付きなど、初期費用を抑えながら新生活をスタートできる設備が充実。
駐車場は並列3台可能、省令準耐火構造・オール電化仕様の住まいです。









































