大塚台西2丁目 販売2棟(2号棟) 新築一戸建て
【公開予定 セントラル住宅の限定情報】
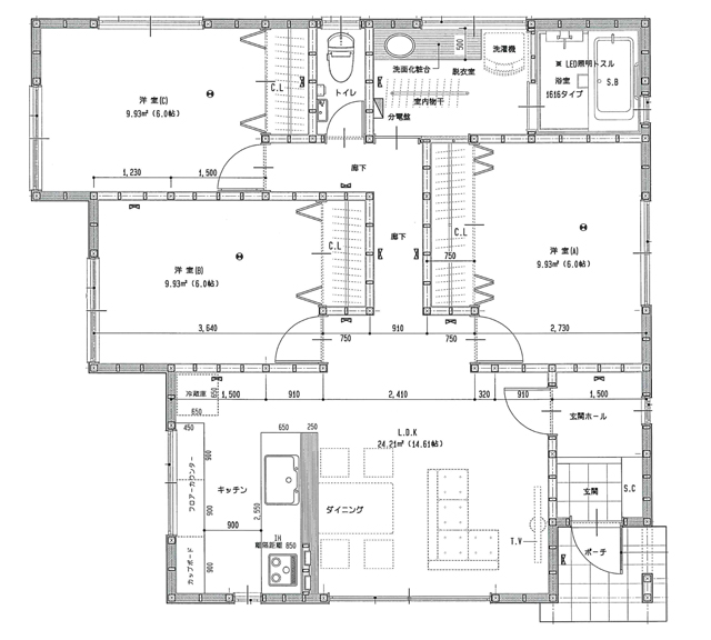
大塚台西2丁目 販売2棟(2号棟) 新築一戸建て
・平屋建て 3LDK LDK約15帖
・駐車場並列3台可
・南側6m、西側6m道路
・内覧可能(^^♪
大塚台西2丁目 販売2棟(2号棟) 新築一戸建て
・平屋建て 3LDK LDK約15帖
・駐車場並列3台可
・南側6m、西側6m道路
・内覧可能(^^♪
この物件についてお問い合わせする
価格
3,980万円
間取り
3LDK
- 土地面積
- 195.90㎡(59.25坪)
- 建物延べ面積
- 76.10㎡(23.02坪)
- 建ぺい率・容積率
- 建ぺい率40%、容積率60%
所在地
宮崎市大塚台西2丁目
建築年月
令和8年4月
構造
木造平屋建て
バルコニーの向き
南向き
駐車場
駐車場3台可
現況
建築中
バス停・駅
土地権利
所有権
地目
宅地
小学校区
宮崎西小学校
中学校区
生目南中学校
- 都市計画
- 市街化区域
- 用途地域
- 第一種低層住居専用地域
- 取引形態
- 専任
設備
ウォシュレット/シャワー付洗面化粧台/システムキッチン/対面式キッチン/食洗機/浄水器/IHコンロ/オール電化/追炊機能/給湯/シャワー/室内洗濯機置場/モニター付きインターホン/駐車場・庭付き/浴室乾燥機/浴室1坪以上/温水洗浄便座
接道の向き・道路幅・接道間口
南側6m、西側6m
備考
・照明付き
・広々洗面室
・1616サイズの浴室
・ペアガラス LOW-Eガラス
・広々洗面室
・1616サイズの浴室
・ペアガラス LOW-Eガラス



































